Dans une belle Résidence construite en 2015 à Romainville
A 5 minutes des transports en communs (ligne 11 du métro – Romainville – Carnot) et des commerces de proximité
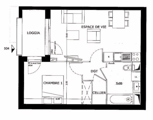
Dans résidence de 2015, en rez-de-chaussée, un appartement meublé de 2 pièces de 40,40m2 et comprenant : séjour avec cuisine, chambre avec placard, salle de bains avec WC, cellier, dégagement, loggia, et un emplacement de parking en sous-sol.